
/двокімнатна квартира 72,94 м²
Світла та затишна квартира з новим якісним ремонтом, меблями та відмінним розсташуванням шукає нових власників. Готова для проживання.
/Технічні особливості та оздоблення
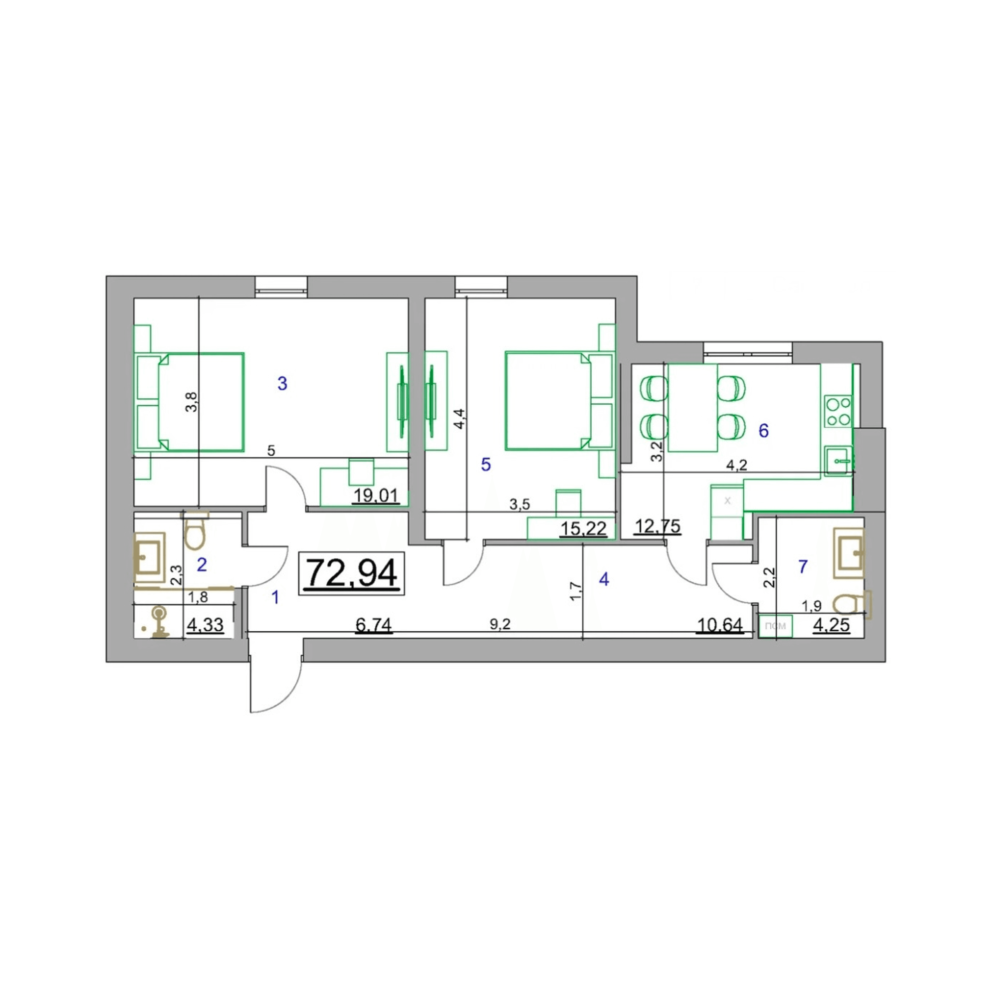
/Планування квартири
1
Тамбур
6,74
2
Санвузол
4,33
3
Спальня
19,01
4
Коридор
10,64
5
Спальня
15,22
6
Кухня
12,75
7
Санвузол
4,25
загальна площа
72,94
/Галерея
/інші варіанти планувань
/ЗАМОВТЕ ДЗВІНОК
Заповніть коротку форму, і наш менеджер зв’яжеться з вами, щоб надати консультацію та відповісти на всі запитання.
ОФІС ПРОДАЖів
Адреса:
м. Київ, вул. Вишнева 2
Графік роботи:
Пн – Пт, 09:00 – 18:00
Телефони:
+380 932372461
+380 681501330
Електронна пошта:
zhk.cappuccino.house@gmail.com





















